Не упусти свой шанс! Последние акции от застройщиков  ▼

Продается 3-комнатная квартира, Электролитный пр-д, 16К7

47 000 000 Р

Электролитный пр-д16К7

Дата публикации: 28 января 2026

Дата обновления: 29 января 2026

Телефон: 
Показать телефон

+7 (993) 909-81-29

Агентство:  ГОРОБМЕН

Название: ЖК "V-House (В-Хаус)"

От застройщика: 0 квартир в продаже

Этаж: 2 / 22

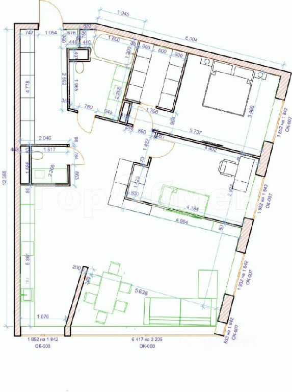
Общая: 104,2 м2

Жилая: 55,6 м2

Кухня: 40 м2

Комнаты: 20 20 15.6 м2

Балкон/лоджия: не указано

Лифт: есть лифт

Окна: окна во двор

Санузел: два совмещенных санузла

Мусоропровод: нет

Состояние квартиры: евроремонт

Тип дома: монолитный

Год постройки: 2016

Территория: огороженная

Парковка: не указано

Статус сделки: продажа

Сделка: прямая продажа

Собственность: не указано

Основание права собственности: не указано

Описание

Просторная трехкомнатная квартира с дизайнерским ремонтом приглашает вас стать её новым владельцем. Расположенная в престижном жилом комплексе "V-House", эта недвижимость идеально сочетает комфорт, стиль и удобство расположения.

Общая площадь квартиры 104,2 квадратных метров, включая жилую зону площадью 55,6 квадратных метров и огромную кухню размером 40 квадратных метров. Высота потолков - 3,1 метра, создающие эффект дополнительного пространства и воздушности интерьера. Окна выходят одновременно на живописный внутренний двор комплекса и оживленную городскую улицу, обеспечивая разнообразие видов и естественный свет в течение всего дня.

Монолитный дом, построенный в 2016 году, оснащён четырьмя лифтами - два пассажирских и два грузовых, что обеспечивает удобное перемещение жителей между этажами независимо от количества багажа или покупок. Подземная парковка гарантирует сохранность автомобиля вне зависимости от погодных условий, а благоустроенная придомовая территория оснащена всеми необходимыми элементами комфорта, включая удобные пандусы для маломобильных групп населения.

Интерьер продуман качественно и исполнен с использованием высококачественных материалов. Гостиная и спальни выполнены в современной стилистике, каждая комната обладает индивидуальным характером и уютом. Функциональная ванная комната оборудована сантехникой, обеспечивая комфорт при эксплуатации, комната дополнена шкафчиками и полочками для хранения предметов личной гигиены и аксессуаров.
Просторную кухню украшают современные кухонные гарнитуры, здесь найдется место как для приготовления любимых блюд, так и для теплых семейных встреч и праздников.

Особое внимание уделено окружающей инфраструктуре района: в близости находятся образовательные учреждения всех уровней, медицинские центры, торговые точки и зоны отдыха. Расположение жилого комплекса в 5 минутах ходьбы от станции метро "Нагорная" существенно упрощает ежедневные перемещения по городу, делая жизнь владельца квартиры ещё более комфортной и приятной.

Возможность приобретения жилья в ипотеку также доступна, что позволит приобрести жилье быстро и удобно.

"V-House" ждёт новых жильцов, готовых оценить преимущества проживания в тихом зелёном районе столицы с прекрасно обустроенной территорией и качественной внутренней отделкой, обеспечивающей высокий уровень комфорта и удовлетворенности жизнью.

Квартира на карте

ПанорамыКарта
Спецпредложения
Добавить объявление